ENG | ESP
REFORMA CASA HEIGHTS
A 1942 bungalow in Little Rock is transformed into a mothern southern-living experience with an open-plan kitchen, front and back porches, a master suite and an outdoor oasis.

Project Type //
Residential Design, Refurbishment
Chronology//
2022
Location //
Little Rock, USA
Team/Stakeholders //
Nerea Amoros Elorduy – Lead Architect
Client//
Private
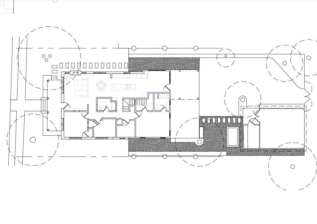
This refurbishment of a 1942 bungalow located in Little Rock, Arkansas, near the Historic Heights neighbourhood included converting the attic into a master bedroom, creating an open-plan kitchen, updating all bathrooms, and adding new porches, decks, and landscaping to the outdoor areas. The bungalow was originally built in 1942 and had been owned by the same family for generations. One of the most striking features of the property was the large Crape Myrtle tree that was planted by the home entrance over fifty years ago.
Over the years, the building had undergone several extensions and additions, which made some indoor spaces chunky and complex. The front and back yards had been neglected for some time, resulting in a need for more comfortable outdoor spaces. The purpose of the project was to maintain the architectural style of the home and the characteristics of the area while making the indoor and outdoor spaces more comfortable, open, and suitable for enjoying the warm climate of Arkansas.
The kitchen was opened to the living area, and all cabinets and appliances were refurbished. It is now connected to the dining and living room to the west, a sunny playroom to the east and the backyard. All cabinets were transformed into drawers with a new white finish, which gave more luminosity to the whole public part of the ground floor.
The entire house was repainted inside and outside, the original hardwood floors were refinished, and the carpet was replaced. The old bathrooms were refitted with new tiles, finishes, vanities, and fixtures to accommodate diverse users with diverse mobility and provide more light and storage.
The attic, which previously had a very small bathroom and was otherwise underused, was converted into a spacious master bedroom with an ensuite master bath and a walk-in closet. We strategically added two skylights to the slanted ceiling and located a full wall-to-ceiling closet to one side of the staircase. We enlarged the preexisting bathroom, outfitting it with a soaking tub, a walk-in shower, and a maple vanity.
The front yard got a new porch to enjoy the southern afternoons, and the landscaping was updated with native and sturdy plants. The backyard was thoroughly cleaned and reorganised, and new flower beds, trees, and a large deck were added to enjoy the morning sun and outdoor dining and play.
