ENG | ESP
NAGURU HOME REFURBISHMENT
A home renovation in Naguru to enhance greenery, passive ventilation and shade, aesthetics and functionality using local materials and artisans
Project Type //
Single-family home, Refurbishment
Chronology//
2019
Location //
Kampala, Uganda
Team/Stakeholders //
Nerea Amoros Elorduy – Lead Architect
Laurence – Carpenter
Client//
Private
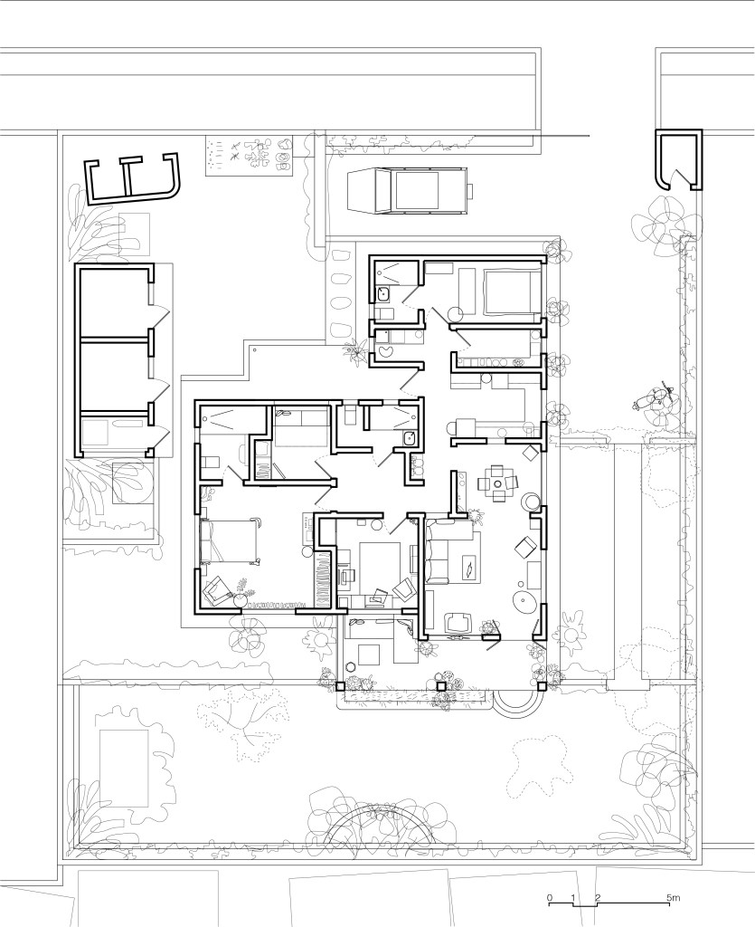
The project involved a comprehensive renovation of a single-family residence in the beautiful neighbourhood of Naguru, in Uganda’s bustling capital. The project’s primary goal was to elevate the aesthetics and functionality of the property, focusing on enhancing the entrance by expanding the covered and paved area. Another key objective was to increase the privacy of the sleeping quarters whilst modernising and creating more accessible and open spaces for the guests and master bedrooms and bathrooms.
In addition to the courtesy bathroom, the reception and guest bedroom areas underwent a significant redesign of walls, entryways, and furniture elements, creating a more sophisticated and stylish ambience. All bathrooms in the house were completely refurbished, and Creative Assemblages, a renowned design firm, designed and manufactured the vanities, shelving, seating, and tables, adding a touch of elegance to the entire property.
Lastly, the aim was to make the living area on the main porch and the front and back yards more inviting and greener. The extensive landscaping work included planting trees, clearing overgrown areas, and building a state-of-the-art henhouse. The result was a stunning and verdant outdoor space, ideal for relaxation and entertaining guests.





