ENG | ESP
BAKERY AND DELICATESSEN
Design — Commercial — New Built
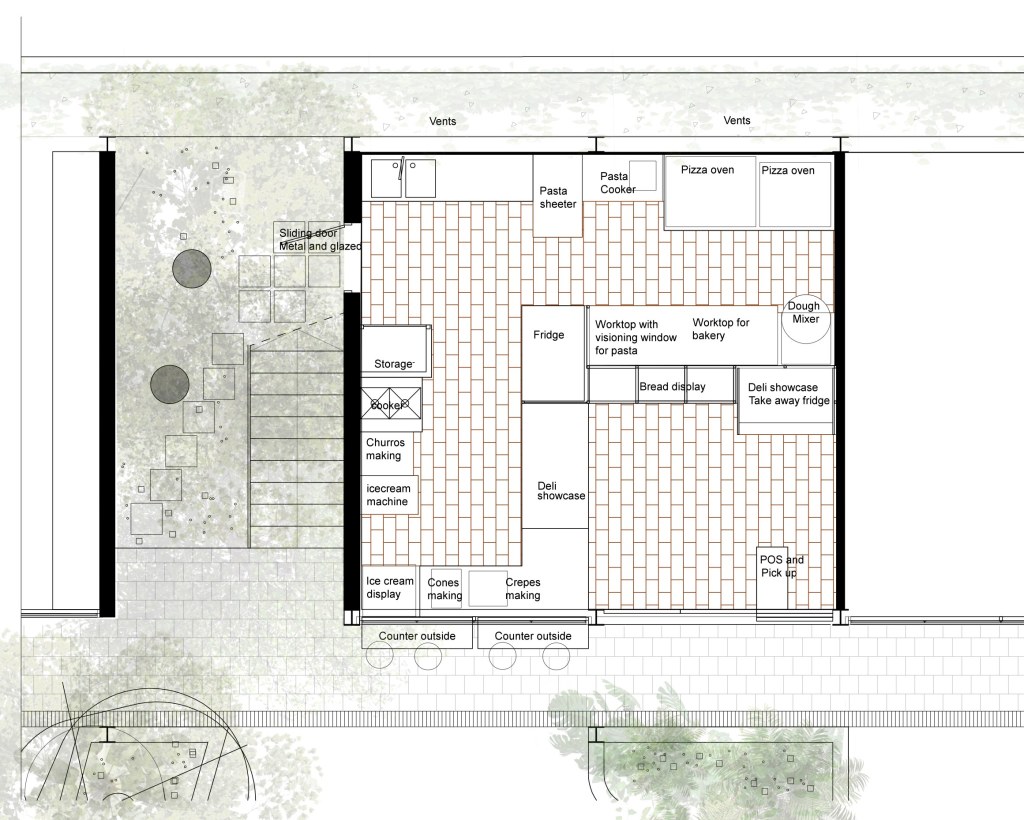
The artisanal bakery, pizzeria and delicatessen shop offer a rustic and homely feel. We created an outdoor counter and a generous indoor-outdoor entry space, with terracotta floors and wooden slats ceilings, and a see-through display-shelf to separated the client’s area and the kitchen.
Project Type //
Commercial development, new built
Chronology//
2019-2020
Location //
Kampala, Uganda
Team//
Nerea Amoros Elorduy – Lead architect
Client//
Private
With the bakery and delicatessen shop, we looked for an artisanal and rustic look in accordance with its theme and name, which means “homely cooking”. The client, a renowned restaurant and bakery manager in Kampala, wanted to make the most of the 32sqm space available, which included a bakery, pizza and fresh pasta restaurant, ice cream and desserts, as well as delicatessen items. The biggest challenge was to fit all the equipment while maintaining the feel of a home kitchen and providing enough space for customers to move around and product display.
We converted half of the space’s generous storefront into a collection area with a counter where customers can sit for a quick bite or collect their food to eat at the central open square right in front. The other side of the storefront is reserved for the entrance, which can be completely open, giving the impression of a much larger making it a semi-indoor/outdoor area.
We used terracotta tiles for the floor, white tiles for the walls, and wooden slats for the ceiling, placed between metal beams, to create the impression of an old home construction in the Mediterranean. The kitchen and the client’s area are separated by a set of fridges, a see-through shelf that contains all the bakery products, and a glass wall that allows customers to see inside the kitchen as all the products are being made while also allowing natural light to flood the whole area.






